STUDIO SEVEN

Conceived over three weeks, Studio 7 reimagines the interior design studio as a flexible, collaborative environment supporting multiple modes of making, thinking, and critique. Shared zones anchor the center and perimeter, while quieter work areas and support spaces sustain daily studio life. Adaptability and material variety enable seamless transitions between collaboration, focus, and presentation while maintaining strong visual connections.

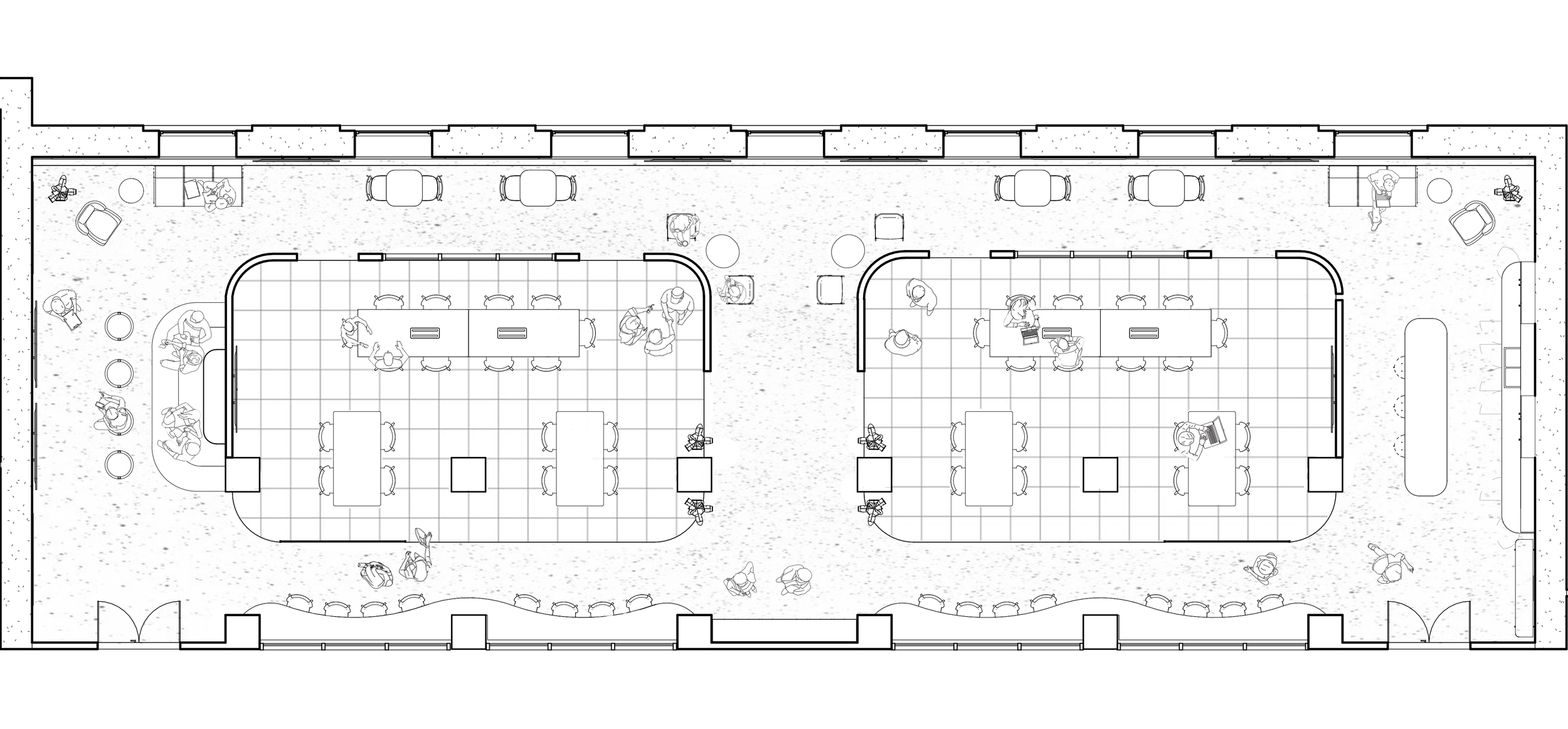
A1 - Critique & Presentation Space

A2 - Collaboration Work Zone #1

A3 - Study Bar #1

A4 - Locker Storage Space

A5 - Collaboration Work Zone #2

A6 - Study Bar #2

A7 - Kitchen

A1

A2

A3

A4

A5

A6

A7

The concept exploration explores how collaboration, movement, and materiality can shape an interior design studio experience. Through abstract collage and diagramming, we studied how ideas flow between collective work, small-group interaction, and individual focus. These explorations tested spatial relationships, textures, and forms rather than fixed layouts, allowing us to understand how energy shifts across a studio environment. The studies informed later decisions about zoning, material transitions, and visual connectivity, guiding the development of Studio 7 as a flexible and collaborative educational workspace.